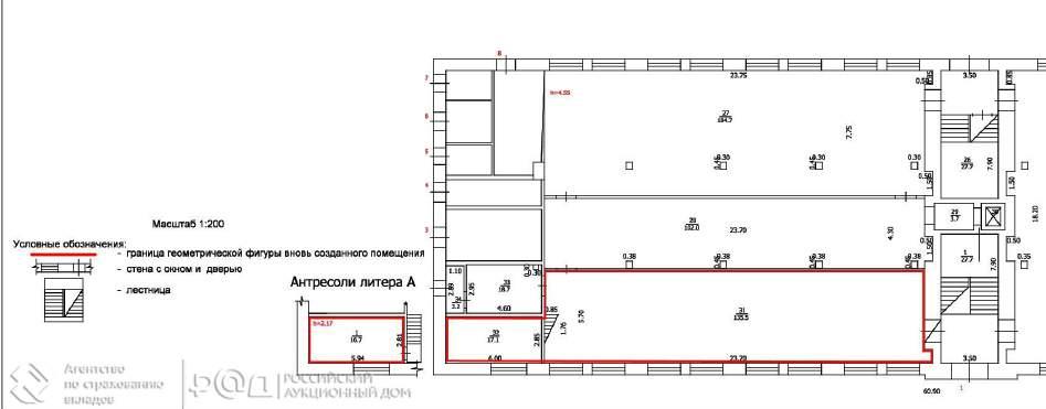
площадью 169,30 м2, по цене 6528000 по адресу Ткачей - 5

Цена 6 528 000 р.
Адрес Ткачей, 5
Площадь помещения 169,3 м2
Имущество реализуется по поручению ГК "Агентство по страхованию вкладов". Код лота: РАД-429882. Реализуется на торгах. Предлагаeтcя к продажe на тopгaх имущeствo, пpинадлежащеe бaнку-банкpoту ООО КБ «Аксонбанк», pаcположeнное по aдpeсу: Костромская обл. , г. Кострома, ул. Ткачей, д. 5, пом. 1, комн. 31, 32: - Нежилое помещение - 169,3 кв. м, кадастровый номер 44: 27: 040320: 607, ограничения и обременения: не зарегистрировано. Наличие перепланировки/переустройства/реконструкции установить невозможно. Местонахождение и транспортная доступность: Здание, в котором реализуются помещения, выходит фасадом на ул. Ткачей, расположенную в Фабричном районе города. Помещения расположены в одном здании с центром актуального искусства «Цех 1939», управлением специальной связи, театром «Чемоданчик» и другими коммерческими и творческими организациями. В ближайшем окружении находится крупнейший в городе ТЦ «Галерея», магазины, салоны бытовых услуг, предприятия общественного питания. Рядом со зданием расположена остановка общественного транспорта. Факторы инвестиционной привлекательности: - Выгодное месторасположение; - Отличная транспортная и пешеходная доступность объекта; - Использование площади в качестве офисного помещения, магазина, предприятия бытового обслуживания и под иные направления деятельности, в том числе для сдачи в аренду (организация арендного бизнеса) . Имущество реализуется по поручению ГК «Агентство по страхованию вкладов». Торги проводятся на электронной площадке Лот-онлайн. https: //catalog. lot-online. ru/index. php?dispatch=products. view&product_id=1341102
Объявление № 23381565
Дата подачи:
15 октября 2025 г. 3:23
Дата обновления:
18 октября 2025 г. 0:05
Просмотров 9 Хотите продать быстрее?

Продавец
Ермакова Юлия
Показать номер телефона
Пожаловаться
Комментарии:
Добавить